2019 Coachmen Mirada 35 BH
$81,700
Payment Calculator
| Type | Class A |
| Manufacturer | Coachmen |
| Make / Model | Mirada / 35 BH |
| Year / Condition | 2019 / Used |
| Length / Width | 35' / 8' |
| Mileage | 23450 Miles |
| Engine Description | Ford Triton V-10/ 6.8L |
| Horse Power | 320 |
| Fuel Type | Gasoline |
| Sleeping Capacity | 10 |
| Stock # | 468608 |
| Air Conditioners | 2 |
| Generator | Yes |
| Slide Outs | 2 |
| RV Location |
Albrightsville, PA
|
Description
Stock #468608
This is a new advertisement, on the market just this week (Nov 17th). Always accepting offers!
POPULAR ** MIRADA 35BH ** LOW MILES ** SLEEPS 10 ** FUN FOR THE WHOLE FAMILY !!
POPULAR ** MIRADA 35BH **
ONLY 23k miles on the Ford Triton V-10 / 6.8L engine
Sleeps 10 !!
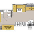
Step inside and enjoy a great layout for the whole family !
Relax on the 68" sofa/sleeper or at the large 73" x 42" U-shaped dinette/sleeper and enjoy the large flat screen TV. There is also another flat screen TV above the kitchen sink.
There is a 81" x 47" power drop down bed above the cab area if you need additional sleeping space
The spacious kitchen includes a double bowl sink, 3 burner stove, oven, microwave and a refrigerator/freezer
Off the kitchen is the 70" x 28" convertible bunk beds/wardrobe storage.
Across is a 1/2 bath with sink, vanity and toilet.
The Master Suite provides a walk around Queen Bed with night stands to each side. Across is large wardrobe closet. Relax and enjoy the flat screen TV.
The Master Bath is equipped with a large 48" x 35" shower, toilet, sink with a large vanity and a linen cabinet.
On the exterior of the RV you can relax under the large power awning and enjoy the exterior flat screen TV.
There is plenty of basement storage for all your camping gear.
Set up is a breeze with side and rear cameras, as well as power jacks.
While we will always attempt to provide you with a TRUE representation of every RV we market, during any purchase from Pop you will be encouraged to schedule an inspection from an independent, accredited inspector and every purchase WILL ALWAYS BE subject to your satisfaction with the results from your independent inspection and your own personal test drive.
We have several more Georgetown, Vista, and Windsport RVs for sale. If you're in the Allentown, Reading, Bethlehem, or Scranton areas, please contact us to let us know what you're looking for and we'll get back with you today about any other class A RV options we have locally that may meet your needs.
You have questions? We have answers. Call us at (941) 757-8969 to discuss this RV today.
This is a new advertisement, on the market just this week (Nov 17th). Always accepting offers!
POPULAR ** MIRADA 35BH ** LOW MILES ** SLEEPS 10 ** FUN FOR THE WHOLE FAMILY !!
POPULAR ** MIRADA 35BH **
ONLY 23k miles on the Ford Triton V-10 / 6.8L engine
Sleeps 10 !!
Step inside and enjoy a great layout for the whole family !
Relax on the 68" sofa/sleeper or at the large 73" x 42" U-shaped dinette/sleeper and enjoy the large flat screen TV. There is also another flat screen TV above the kitchen sink.
There is a 81" x 47" power drop down bed above the cab area if you need additional sleeping space
The spacious kitchen includes a double bowl sink, 3 burner stove, oven, microwave and a refrigerator/freezer
Off the kitchen is the 70" x 28" convertible bunk beds/wardrobe storage.
Across is a 1/2 bath with sink, vanity and toilet.
The Master Suite provides a walk around Queen Bed with night stands to each side. Across is large wardrobe closet. Relax and enjoy the flat screen TV.
The Master Bath is equipped with a large 48" x 35" shower, toilet, sink with a large vanity and a linen cabinet.
On the exterior of the RV you can relax under the large power awning and enjoy the exterior flat screen TV.
There is plenty of basement storage for all your camping gear.
Set up is a breeze with side and rear cameras, as well as power jacks.
While we will always attempt to provide you with a TRUE representation of every RV we market, during any purchase from Pop you will be encouraged to schedule an inspection from an independent, accredited inspector and every purchase WILL ALWAYS BE subject to your satisfaction with the results from your independent inspection and your own personal test drive.
We have several more Georgetown, Vista, and Windsport RVs for sale. If you're in the Allentown, Reading, Bethlehem, or Scranton areas, please contact us to let us know what you're looking for and we'll get back with you today about any other class A RV options we have locally that may meet your needs.
You have questions? We have answers. Call us at (941) 757-8969 to discuss this RV today.
Payment Calculator
$
$1,060.66














