2016 Tiffin Allegro Open Road 36LA
$94,500
Price Drop: $28,500.00 (Sep 08)
Payment CalculatorPrice DropPrice Drop: $28,500.00 (Sep 08)
| Type | Class A |
| Manufacturer | Tiffin |
| Make / Model | Allegro Open Road / 36LA |
| Year / Condition | 2016 / Used |
| Length / Width | 36' / 8' |
| Mileage | 50388 Miles |
| Engine Description | Ford Triton V10 6.8L |
| Horse Power | 320 |
| Fuel Type | Gasoline |
| Sleeping Capacity | 2 |
| Stock # | 456505 |
| Air Conditioners | 2 |
| Generator | Yes |
| Slide Outs | 2 |
| RV Location |
Deforest, WI
|
Description
Stock #456505
Video of this RV available at www [dot] popsells [dot] com/view/456505
Reason for selling is "Medical issues".
This Allegro Open Road has now been on the market a couple months. Looking for any offers!
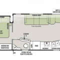
2016 Tiffin Allegro Open Road 36LA with two slide-outs!
For sale: a beautifully maintained 2016 Tiffin Allegro Open Road 36LA with under 51,000 miles, loaded with luxury and ride-enhancing upgrades.
Factory-installed features include a residential refrigerator with an icemaker, convection microwave, stacked washer/dryer, central vacuum, fireplace, bedroom ceiling fan, free-standing dinette with a computer station, and in-dash stereo with navigation.
A driver's door with a power window adds convenience while enjoying added comfort with dual recliners in place of the sleeper sofa. This coach is prepped for solar panels and a satellite dish.
Ride and safety upgrades include SumoSprings, front and rear anti-sway bars, Koni shocks, Safe-T-Plus steering stabilizer, and a tire pressure monitoring system, making every journey smooth, stable, and secure.
The free-standing dinette features a computer workstation, and the in-dash stereo includes a navigation system.
Call us today to arrange a showing or make an offer that's contingent on your inspection.
While we will always attempt to provide you with a TRUE representation of every RV we market, during any purchase from Pop you will be encouraged to schedule an inspection from an independent, accredited inspector and every purchase WILL ALWAYS BE subject to your satisfaction with the results from your independent inspection and your own personal test drive.
We have several more Phaeton, Georgetown, and Allegro RED RVs for sale. If you're in the Madison, Waukesha, Janesville, or Fond du Lac areas, please contact us to let us know what you're looking for and we'll get back with you today about any other class A RV options we have locally that may meet your needs.
You have questions? We have answers. Call us at (941) 757-8969 to discuss this RV today.
Video of this RV available at www [dot] popsells [dot] com/view/456505
Reason for selling is "Medical issues".
This Allegro Open Road has now been on the market a couple months. Looking for any offers!
2016 Tiffin Allegro Open Road 36LA with two slide-outs!
For sale: a beautifully maintained 2016 Tiffin Allegro Open Road 36LA with under 51,000 miles, loaded with luxury and ride-enhancing upgrades.
Factory-installed features include a residential refrigerator with an icemaker, convection microwave, stacked washer/dryer, central vacuum, fireplace, bedroom ceiling fan, free-standing dinette with a computer station, and in-dash stereo with navigation.
A driver's door with a power window adds convenience while enjoying added comfort with dual recliners in place of the sleeper sofa. This coach is prepped for solar panels and a satellite dish.
Ride and safety upgrades include SumoSprings, front and rear anti-sway bars, Koni shocks, Safe-T-Plus steering stabilizer, and a tire pressure monitoring system, making every journey smooth, stable, and secure.
The free-standing dinette features a computer workstation, and the in-dash stereo includes a navigation system.
Call us today to arrange a showing or make an offer that's contingent on your inspection.
While we will always attempt to provide you with a TRUE representation of every RV we market, during any purchase from Pop you will be encouraged to schedule an inspection from an independent, accredited inspector and every purchase WILL ALWAYS BE subject to your satisfaction with the results from your independent inspection and your own personal test drive.
We have several more Phaeton, Georgetown, and Allegro RED RVs for sale. If you're in the Madison, Waukesha, Janesville, or Fond du Lac areas, please contact us to let us know what you're looking for and we'll get back with you today about any other class A RV options we have locally that may meet your needs.
You have questions? We have answers. Call us at (941) 757-8969 to discuss this RV today.
Payment Calculator
$
$1,060.66














