2014 Winnebago Vista 35F
$59,950
Price Drop: $14,950.00 (Aug 14)
Payment CalculatorPrice DropPrice Drop: $14,950.00 (Aug 14)
| Type | Class A |
| Manufacturer | Winnebago |
| Make / Model | Vista / 35F |
| Year / Condition | 2014 / Used |
| Length / Width | 35' / 8' |
| Mileage | 34000 Miles |
| Engine Description | Ford 6.8L Triton V-10 |
| Horse Power | 362 |
| Fuel Type | Gasoline |
| Sleeping Capacity | 6 |
| Stock # | 454212 |
| Air Conditioners | 2 |
| Generator | Yes |
| Slide Outs | 2 |
| RV Location |
Aviston, IL
|
Description
Stock #454212
Reason for selling is "Wanting a diesel pusher".
ANY and ALL offers will be put in front of our seller! Submit your offer today!
2015 Winnebago Vista 35F Class-A Coach With Low Mileage!
Discover the freedom of the open road with the 2015 Winnebago Vista 35F, a Class A motorhome that blends spacious comfort and reliable performance into a versatile travel machine.
At just over 35 feet long and riding on a sturdy Ford chassis, this coach offers a powerful and dependable journey thanks to its V10 Triton engine producing 362 hp and 460 lb‑ft of torque.
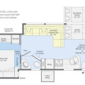
Step inside to find vaulted ceilings that create an open, airy atmosphere, with two slide-outs expanding the living and sleeping areas. The floor plan is thoughtfully designed to accommodate up to seven people comfortably, complete with a walk-around queen bed in the master suite.
The heart of this Vista is its well-equipped kitchen and inviting living space. You'll appreciate the residential-style amenities, including a three-burner cooktop, microwave convection oven, double-basin sink with Corian countertops, generous cabinet storage, and a dual-door refrigerator.
The adjacent dining area and theater-style seating offer a comfortable spot for meals or entertainment, enhanced by an electric fireplace that adds warmth and ambiance.
Every journey is made easier by thoughtful creature comforts. Full climate control is handled by dual air conditioners and a 40,000 BTU furnace, while the powerful 5,500-watt Onan generator ensures you stay powered up.
With 80 gallons of fresh water capacity and ample gray and black tanks, you can camp off-grid with confidence. Exterior features, such as a 16-foot power awning and numerous storage compartments, make outdoor living effortless.
Owners consistently praise the Vista 35F for its value, quality, and livability. Enthusiasts note that it's an excellent entry-level Class A with high-quality components, versatility, and strong storage space -- perfect for couples, families, or even full-timers seeking comfort and functionality.
With its solid build, smart layout, and Ford power, the 2015 Winnebago Vista 35F stands as a compelling choice for RVers who want to explore without compromise. Whether you're chasing sunsets across state lines or retreating to a quiet campsite, this coach brings the comforts of home wherever your travels lead.
While we will always attempt to provide you with a TRUE representation of every RV we market, during any purchase from Pop you will be encouraged to schedule an inspection from an independent, accredited inspector and every purchase WILL ALWAYS BE subject to your satisfaction with the results from your independent inspection and your own personal test drive.
We have several more Georgetown, Bounder, and Windsport RVs for sale. If you're in the St. Louis, St. Charles, St. Peters, or Florissant areas, please contact us to let us know what you're looking for and we'll get back with you today about any other class A RV options we have locally that may meet your needs.
You have questions? We have answers. Call us at (941) 757-8969 to discuss this RV today.
Reason for selling is "Wanting a diesel pusher".
ANY and ALL offers will be put in front of our seller! Submit your offer today!
2015 Winnebago Vista 35F Class-A Coach With Low Mileage!
Discover the freedom of the open road with the 2015 Winnebago Vista 35F, a Class A motorhome that blends spacious comfort and reliable performance into a versatile travel machine.
At just over 35 feet long and riding on a sturdy Ford chassis, this coach offers a powerful and dependable journey thanks to its V10 Triton engine producing 362 hp and 460 lb‑ft of torque.
Step inside to find vaulted ceilings that create an open, airy atmosphere, with two slide-outs expanding the living and sleeping areas. The floor plan is thoughtfully designed to accommodate up to seven people comfortably, complete with a walk-around queen bed in the master suite.
The heart of this Vista is its well-equipped kitchen and inviting living space. You'll appreciate the residential-style amenities, including a three-burner cooktop, microwave convection oven, double-basin sink with Corian countertops, generous cabinet storage, and a dual-door refrigerator.
The adjacent dining area and theater-style seating offer a comfortable spot for meals or entertainment, enhanced by an electric fireplace that adds warmth and ambiance.
Every journey is made easier by thoughtful creature comforts. Full climate control is handled by dual air conditioners and a 40,000 BTU furnace, while the powerful 5,500-watt Onan generator ensures you stay powered up.
With 80 gallons of fresh water capacity and ample gray and black tanks, you can camp off-grid with confidence. Exterior features, such as a 16-foot power awning and numerous storage compartments, make outdoor living effortless.
Owners consistently praise the Vista 35F for its value, quality, and livability. Enthusiasts note that it's an excellent entry-level Class A with high-quality components, versatility, and strong storage space -- perfect for couples, families, or even full-timers seeking comfort and functionality.
With its solid build, smart layout, and Ford power, the 2015 Winnebago Vista 35F stands as a compelling choice for RVers who want to explore without compromise. Whether you're chasing sunsets across state lines or retreating to a quiet campsite, this coach brings the comforts of home wherever your travels lead.
While we will always attempt to provide you with a TRUE representation of every RV we market, during any purchase from Pop you will be encouraged to schedule an inspection from an independent, accredited inspector and every purchase WILL ALWAYS BE subject to your satisfaction with the results from your independent inspection and your own personal test drive.
We have several more Georgetown, Bounder, and Windsport RVs for sale. If you're in the St. Louis, St. Charles, St. Peters, or Florissant areas, please contact us to let us know what you're looking for and we'll get back with you today about any other class A RV options we have locally that may meet your needs.
You have questions? We have answers. Call us at (941) 757-8969 to discuss this RV today.
Payment Calculator
$
$1,060.66














